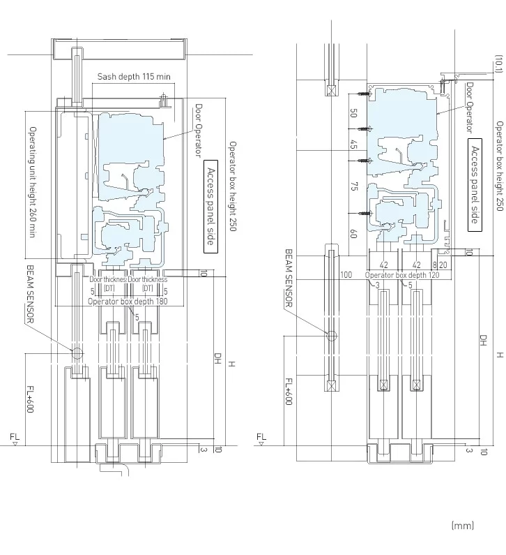
V-60TL Telescopic Door Operator - V-60TL Telescopic Door Operator
- Brand: Nabtesco
- Product Code: V-60TL Telescopic Door Operator
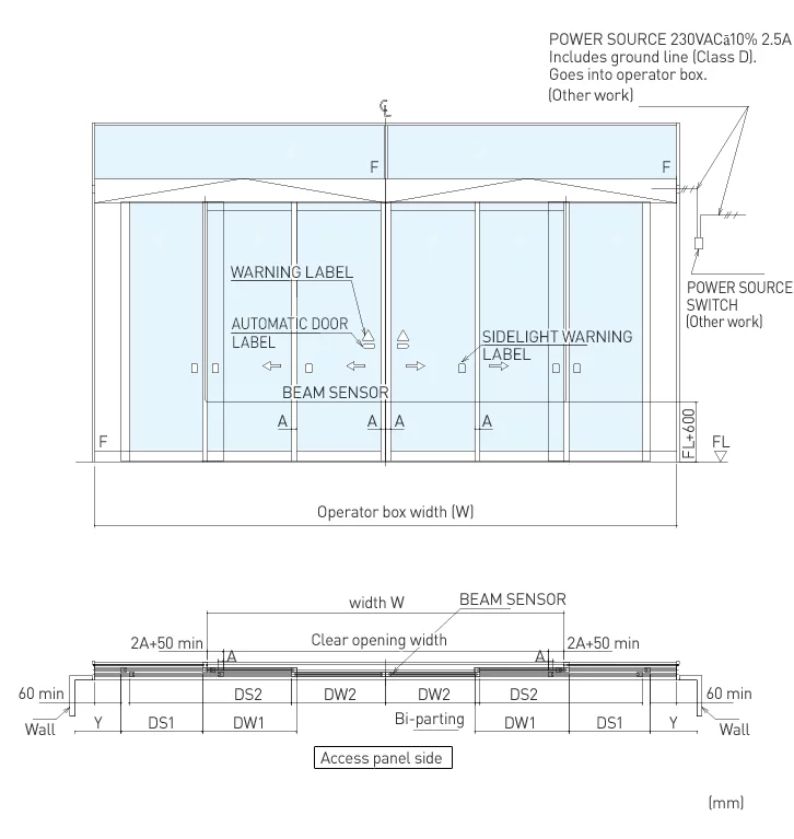
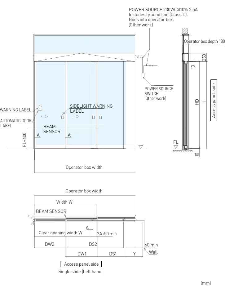
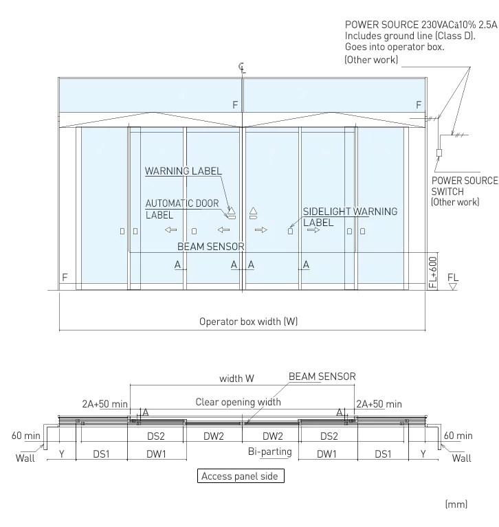
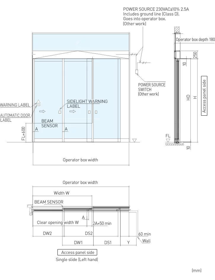
Description: These double sliding doors major advantage is an opening about 1.3 times wider than usual sliding doors. A narrow frontage opens as wide as possible, and a wide frontage opens even wider.
Description: These double sliding doors major advantage is an opening about 1.3 times wider than usual sliding doors. A narrow frontage opens as wide as possible, and a wide frontage opens even wider.
Features
- 1) NATRUS, Future-standard automatic door with a priority on safety.
- 2) About 1.3 times wider clear opening than that of usual sliding doors.
- 3) New slimmer design of header box made the appearance more aesthetic.
Specifications
Product Name | V-60TL Telescopic Door Operator |
Network Support | https://nabco.nabtesco.com/wp-content/themes/nabtesco/img/common/icn_natrus_net.png |
Door Operator Type | V-60TL |
Door Type | Bi-parting |
Applicable Door Mass (kg) x Door Quantity *1 | 40×4 |
Applicable Door Area : DW x DH (m):DW×DH(㎡) | 1.4 |
Applicable Door Width : DW (mm) | 500~550 |
Ratio of Door Height / Width : DH / DW *2 | 4.2 |
Required Power Capacity | 230VAC ± 10% 2.5A *3 |
Door Operation Speed (m/sec) | 0.1-0.7 *4 |
Wind Load (m/sec) | 7m/s or less *5 |



