DSN-60/75/150S-HM - DSN-60/75/150S-HM
- Brand: Nabtesco
- Product Code: DSN-60/75/150S-HM
Description: Aesthetic slim design which enhances the value of the entrance.
Description: Aesthetic slim design which enhances the value of the entrance.
Features
- 1) Slim design:
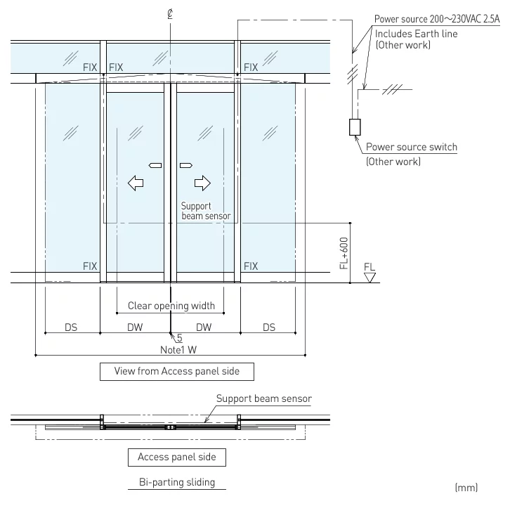
- Height of the header is only 100mm, and can be integrated to the design of various entrances such as office building, shopping mall, etc.
- 2) High performance:
- NET-DS series is adopted as an operating unit which provides a high level of safety and reliability with optimal functionality.
Specifications
Product Name | DSN-60S-HM |
Network Support | - |
Door Operator Type | DS-60 |
Door Type | Bi-parting |
Applicable Door Mass (kg) x Door Quantity *1 | 60×2 |
Applicable Door Area : DW x DH (m):DW×DH(㎡) | 1.8 |
Applicable Door Width : DW (mm) | 650〜2500 |
Ratio of Door Height / Width : DH / DW *2 | max. 4.0 |
Power Supply | 230VAC+6/-10% 50/60Hz |
Wind Load (m/sec) | 15 m/s |


