DS-S-EN(HM) - DS-S-EN(HM)
- Brand: Nabtesco
- Product Code: DS-S-EN(HM)
Description: Simple and user friendly sliding door operator for everybody.
Description: Simple and user friendly sliding door operator for everybody.
Features
- 1) Excellent durability and compact design is realized by hypoid gear with brushless motor.
- 2) Ease of installation is realized by simple wiring and reduced number of components.
- 3) Three operator models are available depending on door weight.
- 4) Suitable for diverse applications, such as hospitals, airports, malls, offices, etc.
- 5) CE approved.
Specifications
Product Name | DS-60S-EN(HM) |
Network Support | - |
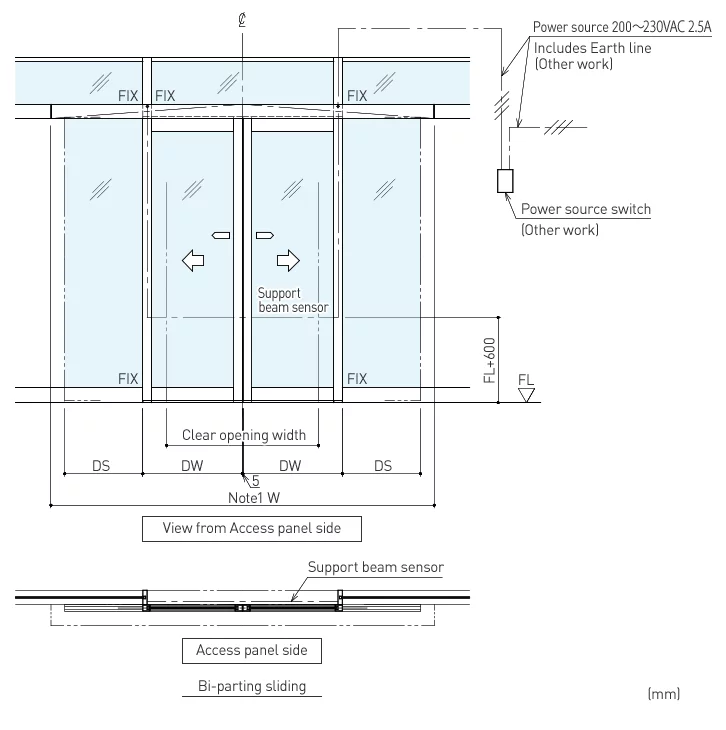
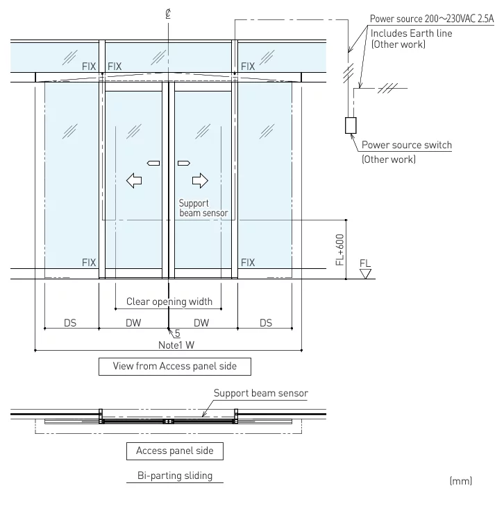
Door Operator Type | DS-60 |
Door Type | Bi-parting |
Applicable Door Mass (kg) x Door Quantity *1 | 60×2 |
Applicable Door Area : DW x DH (m):DW×DH(㎡) | 1.8 |
Applicable Door Width : DW (mm) | 650〜1250 |
Ratio of Door Height / Width : DH / DW *2 | max. 4.0 |
Power Supply | 230VAC+6/-10% 50/60Hz |
Wind Load (m/sec) | 15 m/s |


