DH-41 Swing Door Operator - DH-41 Swing Door Operator
- Brand: Nabtesco
- Product Code: DH-41 Swing Door Operator
Description: Because the operating unit embedded in the transom over the door offers high workability, the door is relatively easily adopted in the renovation of outward and inward-opening door, as well as in new buildings.
Description: Because the operating unit embedded in the transom over the door offers high workability, the door is relatively easily adopted in the renovation of outward and inward-opening door, as well as in new buildings.
Features
- 1) The unit automatically adjusts the driving force to achieve a consistent operating feel, regardless of door weight or external force, such as air pressure.
- 2) In the case of bi-parting type with two door motors, both right and left doors are automatically operated in synchronization.
- 3) The door is applicable to the overlapping structure of door ends (order adjusting function).
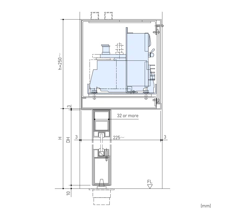
Specifications
Product Name | DH-41 |
Door Operator Type | DH-41(×1) |
Door Type | Double-swing |
Applicable Door Mass (kg) x Door Quantity *1 | 100×2 |
Applicable Door Area : DW x DH (m):DW×DH(㎡) | Pleaser refer to "Table" |
Applicable Door Width : DW (mm) | 750~990 |
Ave. Open / Close Speed | ~45゜/s |
Power Supply | 100V AC・5A |
Wind Load (m/sec) | 10m/s or less |


