DH-41 Folding Door Operator - DH-41 Folding Door Operator
- Brand: Nabtesco
- Product Code: DH-41 Folding Door Operator
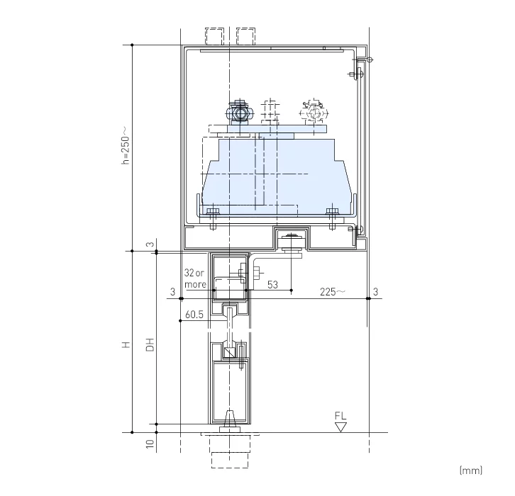
Description: The folding door needs no door pockets and occupies a small operation space to the front and rear of the door. The door is often used for partitions, corridors, operating rooms, powder rooms, and workrooms.
Description: The folding door needs no door pockets and occupies a small operation space to the front and rear of the door. The door is often used for partitions, corridors, operating rooms, powder rooms, and workrooms.
Features
- 1) The folding door opens wide in a limited space and does not need door pockets.
- 2) A flat-floor structure, which has no grooves nor guide rails, has been achieved.
- 3) The unit automatically adjusts the driving force to achieve a consistent operating feel, regardless of door weight or external force, such as air pressure.
- 4) In the case of bi-parting type with two door motors, both right and left doors are automatically operated in synchronization.
- 5) The door is applicable to the overlapping structure of door ends (order adjusting function).
Specifications
Product Name | DH-41 |
Door Operator Type | DH-41(×1) |
Door Type | 4 leaves |
Applicable Door Mass (kg) x Door Quantity *1 | 50×4 |
Applicable Door Area : DW x DH (m):DW×DH(㎡) | Please refer to "Table" |
Applicable Door Width : DW (mm) | 375~495 |
Ave. Open / Close Speed | ~0.4m/s |
Power Supply | 100V AC・5A |
Wind Load (m/sec) | 10m/s or less |



